15 200 Kč / měs.+ záloha energie a služby 1100 Kč, + elektřina (cca 2500 Kč), kauce 20000 Kč, provize RK 15200 KčPronájem
Pardubice, K Višňovce
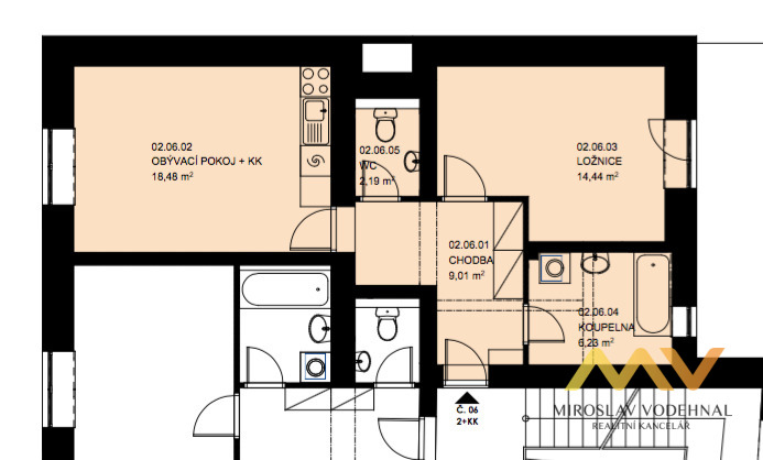
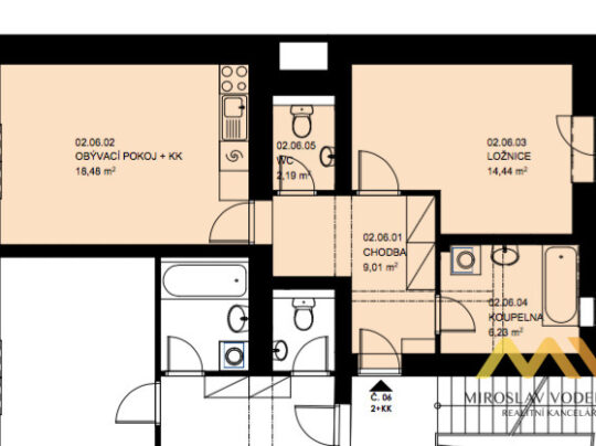
K pronájmu nabízíme byt 2+kk o rozloze 58 m2, která se nachází ve 2. NP třípodlažního rekonstruovaného cihlového domu v blízkosti centra města Pardubic, v ul. K Višňovce. Dispozice: obývací pokoj s kuchyňským koutem (18,48 m2), ložnice 14,44 m2, koupelna (6,23 m2), toaleta 2,2 m2 předsíň (9 m2), sklep (7,56 m2). Jedná se o částečně zařízený byt, obývací pokoj s kuchyňským koutem je vybaven novou kuchyňskou linkou na míru se spotřebiči (el. sklokeramická varná deska, el. trouba, odsavač par). Ložnice je zcela nezařízená s francouzským oknem s výhledem do sousedních zahrad. Prostorná koupelna s vanou, umyvadlo, přípojka na pračku. Toaleta je samostatná se závěsným WC a umyvadlem. V předsíni jsou velké vestavěné úložné prostory (skříně) na míru. Vytápění podlahové elektrické s LCD ovládáním teploty každé místnosti, ohřev vody el. bojlerem (160 l), osvětlení LED, internet zaveden. Okna plastová se žaluziemi. Plovoucí podlaha v pokojích, v koupelně a předsíni dlažba. K dispozici je prostorný sklep 8 m2. Dům prošel kompletní rekonstrukcí a dá se považovat za novostavbu. Velmi klidné místo s možností bezplatného parkování přímo u domu. Centrum města 8 min. chůze, MHD, kompletní občanská vybavenost v místě. Byt určen max. pro 2 osoby, bez zvířat, nekuřáci. Nájemné 15.200 Kč/měsíc, + energie a služby 1100 Kč (pro 2 osoby), + elektřina bude převedena na nájemce (cca 2500 Kč), vratná kauce 2x nájem, provize RK 1x nájem. K nastěhování ihned.
Mám zájem| ID nemovitosti | N1477 |
| Celková plocha | 58 m2 |
| Podlahová plocha | 58 m2 |
| Užitná plocha | 58 m2 |
| Číslo podlaží | 2 |
| Počet podlaží | 3 |
| Vlastnictví | Osobní |
| Dispozice | 2+kk |
| Stav objektu | Po rekonstrukci |
| Typ budovy | Cihlový |
| Balkón | Ne |
| Lodžie | Ne |
| Terasa | Ne |
| Sklep | Ano |
| Parkovací místo | Ne |
| Garáž | Ne |
| Výtah | Ne |
| Voda | Dálkový rozvod |
| Energetický štítek | B |
| Typ dohody | Výhradní |
| Typ objektu | Patrový |
| Podzemní podlaží | 1 |
| Dostupné | 2025-12-01 |
| Vybavení | Částečně zařízený |